20件
-
動画
パノラマ
NEW
1,090万円
1階 / 69.50㎡ / 3LDK /築30年 /10階建
- 陽当り良好
- エレベーター
- 専用庭
- 室内洗濯機置場
- 電気有
- システムキッチン
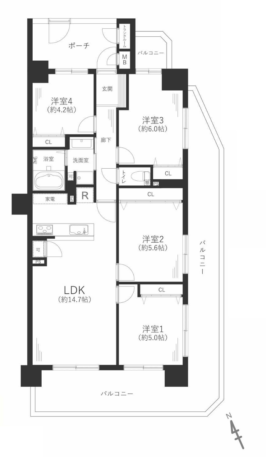
山陽電鉄 藤江駅まで徒歩約9分、JR西明石駅まで徒歩約16分!2沿線利用可能◎
南向きなので陽当り良好!嬉しい専用庭付きのお部屋です!
キッチン奥からは洗面室へと直接アクセス可能なサーキュレーションタイプの間取り。
水回りをぐるりと回れる動線なので、家事もスムーズに行えます◎
各洋室、和室には収納スペースが確保されており、廊下に物入れ、玄関にはシューズボックスがございます。
是非ご内覧いただきたい物件です!
お気軽にお問い合わせください!
※自転車置場:無料~月額200円、バイク置場:月額1000円
【住宅ローン1DAY診断を導入しました!診断のみでも大歓迎です!】 -
NEW
2,999万円
5階 / 76.32㎡ / 4LDK /築25年 /8階建
- エレベーター
- リフォーム済
- バルコニー
- 駐輪場
- システムキッチン
- 温水洗浄便座
◇南東角部屋の引き回しバルコニー!
◇バルコニーから海と淡路島が見え、日照も良好◎
◇リフォーム物件 水まわり新品に交換!
お気軽にお問合せください!
【住宅ローン1DAY診断を導入しました!診断のみでも大歓迎です!】
最短当日借入可能額を無料診断いたします。
是非お気軽にご相談ください!
※家具・家電・什器は付帯しません。
※図面と現況が相違する場合は現況を優先いたします。 -
NEW
1,448万円
11階 / 52.80㎡ / 2LDK /築34年 /12階建
- ペット相談
- 陽当り良好
- システムキッチン
- 温水洗浄便座
- 浴室乾燥機
- 陽当り良好
明石海峡がみえる大久保の物件!
◆令和5年1月フルリフォーム済
~L型キッチン、浴室・トイレ新調、洗面台・洗濯水栓・洗濯バン新調~
~建具、フローリング、クロス全張替~
※その他、スイッチや分電盤、コンセントなどもリフォームしました。
駅前は商業施設が充実!
高階層から眺める景色は明石市を一望できます。
お気軽にお問い合わせください!
~住宅ローン1DAY診断を導入しました!
診断のみでも大歓迎です!~
最短当日借入可能額を無料診断いたします。
是非お気軽にご相談ください!
※分譲駐車場管理費・修繕費/ 月額2,000 円・6,000 円
※売主指定司法書士となります。 -
NEW
970万円
6階 / 60.84㎡ / 3LDK /築23年 /10階建
- 陽当り良好
- エレベーター
- 駐輪場
- 浴室乾燥機
- 陽当り良好
- 宅配ボックス
●JR土山駅まで徒歩約22分
●南東向きで陽当たり良好◎
●ドラッグストアスギ薬局 徒歩約2分
●ディオ明石店 徒歩約1分
●セブンイレブン 徒歩約3分
●インターネット使い放題(使用料は管理費に含まれます)
お気軽にお問い合わせください!
※ケーブルテレビ負担金:月額1,680円
バイク置場(50CC以下に限る):月額1,000円
自転車置場:無料
【住宅ローン1DAY診断を導入しました!診断のみでも大歓迎です!】
住宅ローンのお悩みはございませんか?
最短当日借入可能額を無料診断いたします。
是非お気軽にご相談ください! -
NEW
430万円
8階 / 50.00㎡ / 1LDK /築38年 /9階建
- ペット相談
- エレベーター
- オール電化
●真浦バス停まで徒歩約6分
●最上階の角部屋◎
●プールのあるリゾートマンション!
●ファミリーマートまで徒歩約6分
●イオンスタイル洲本まで車で8分
なんでも揃いますよー^^
大切なペットと一緒に暮らせるマンションです(規約あり)
是非お気軽にお問合せください!
~住宅ローン1DAY診断を導入しました!
診断のみでも大歓迎です!~
最短当日借入可能額を無料診断いたします。
是非お気軽にご相談ください!
※真浦バス停まで徒歩約6分
洲本ICまで車 約17分
※家具・家電・什器は付帯しません。 -
NEW
2,399万円
- / 83.62㎡ / 3LDK /築32年 /2階建
- 都市ガス
- 陽当り良好
- システムキッチン
- 浴室乾燥機
- TVモニタ付インターホン
- 温水洗浄便座
JR「大久保」駅まで徒歩約10分!
平成30年外壁塗装歴あり!
小学校まで徒歩約9分とお子様の通学も安心です!
リフォーム施工内容(完成予定:2025年3月)
■水回り
キッチン新品、お風呂新品、トイレ新品、洗面台新品
■内装
クロス張替え、フローリング上張り、網戸貼替え、室内クリー
ニング、クッションフロア張替え、白蟻点検、建具交換
~住宅ローン1DAY診断を導入しました!
診断のみでも大歓迎です!~
※JR東海道・山陽本線「大久保」駅 徒歩約10分(約750m)
神姫バス「大久保東」停 徒歩約3分(約230m)
※駐車台数1台
※接道状況:北東 公道約3.9m
※家具・家電・什器は付帯しません。 -
NEW
2,590万円
3階 / 79.62㎡ / 4LDK /築35年 /13階建
- 陽当り良好
- エレベーター
- リノベーション済
- リフォーム済
- バルコニー
- フローリング
エレベーター停止階!
南東向き・陽当り良好◎
総戸数254戸の大規模マンション
~リノベーション物件 令和7年7月完了~
・新規交換:システムキッチン、ユニットバス、洗面化粧台、トイレ、建具、配管更新
・新規貼替:クロス全室、カーペット
・その他:畳表替・襖、ハウスクリーニング
お気軽にお問合せください!
【住宅ローン1DAY診断を導入しました!診断のみでも大歓迎です!】
最短当日借入可能額を無料診断いたします。
是非お気軽にご相談ください!
※家具・家電・什器は付帯しません。
※図面と現況が相違する場合は現況を優先いたします。 -
NEW
1,000万円
9階 / 38.34㎡ / 1DK /築14年 /9階建
山陽本線「朝霧」駅 徒歩14分!
平坦地 / バス停徒歩3分以内 / 最上階
設備充実◎
安心の24時間365日スタッフ常勤、入居者専用レストラン(週毎日替有)、
サウナ付き大浴場、バリアフリー設計、医療/介護健康相談室、
総合病院『明舞中央病院』隣接、DK部分床暖房、ペット飼育可(制限有)
お気軽にお問合せください!
【住宅ローン1DAY診断を導入しました!診断のみでも大歓迎です!】
最短当日借入可能額を無料診断いたします。
是非お気軽にご相談ください!
※家具・家電・什器は付帯しません。
※図面と現況が相違する場合は現況を優先いたします。 -
NEW
1,100万円
3階 / 71.85㎡ / 2SLDK /築28年 /8階建
- 陽当り良好
- エレベーター
- 陽当り良好
- カウンターキッチン
●西江井ヶ島駅まで徒歩約5分!
●南向きで陽当たり良好◎
●TACOバス大池南バス停まで徒歩約1分
●JAファーマーズプチフレッシュ・モアまで
徒歩約8分
お気軽にお問い合わせください!
~住宅ローン1DAY診断を導入しました!
診断のみでも大歓迎です!~
最短当日借入可能額を無料診断いたします。
是非お気軽にご相談ください!
※ケーブルTV使用料:月額550円 -
NEW
2,799万円
6階 / 71.63㎡ / 3LDK /築28年 /8階建
リフォーム2025年5月完成予定
■水回り
キッチン新品、お風呂新品、トイレ新品、洗面台新品
■内装
クロス張替え、フローリング貼替え、畳表替え、襖貼替え、
網戸貼替え、室内クリーニング、クッションフロア張替え、建具交換
~住宅ローン1DAY診断を導入しました!
診断のみでも大歓迎です!~
是非お気軽にご相談ください!
※明石市Tacoバスたこバス「ゆりのき通2丁目北」停 徒歩約5分(約350m)
※ルーフバルコニー面積:48.00㎡
※情報と現況が相違する場合は、現況優先とします。
※司法書士は売主の指定になります。
※家具・家電・什器は付帯しません。 -
NEW
650万円
5階 / 70.59㎡ / 2LDK /築44年 /7階建
- ペット相談
- 陽当り良好
- エレベーター
- リフォーム済
- バス・トイレ別
- 室内洗濯機置場
オーナーチェンジ物件!
山陽電鉄本線「東二見」駅 徒歩約2分!
大切なペットと一緒に暮らせるマンションです(規約あり)
お気軽にお問合せください!
【住宅ローン1DAY診断を導入しました!診断のみでも大歓迎です!】
最短当日借入可能額を無料診断いたします。
是非お気軽にご相談ください!
※家具・家電・什器は付帯しません。
※図面と現況が相違する場合は現況を優先いたします。 -
NEW
1,980万円
6階 / 66.76㎡ / 3LDK /築22年 /7階建
ペット飼育可(規約有)!リフォーム履歴あり!
バルコニーから明石海峡大橋や淡路島が望めます!
2024 年11 月30 日 リフォーム完了!
【住宅ローン1DAY診断を導入しました!診断のみでも大歓迎です!】
最短当日借入可能額を無料診断いたします。
※家具・家電・什器は付帯しません。
※図面と現況が相違する場合は現況を優先いたします。
※2025 年10 月より管理費10,430 円に改定
※ペット飼育可(成獣の状態で体長50cm 以内、体重
10kg 以内の犬、猫等の小動物や小鳥、
熱帯魚。一住戸二匹まで。)
※売主指定の司法書士をご利用いただきます。 -
NEW
2,980万円
- / 95.57㎡ / 4LDK /築1年 /2階建
- 陽当り良好
- オール電化
- システムキッチン
- カウンターキッチン
- 浴室乾燥機
- TVモニタ付インターホン
2024年9月完成の物件です!
オール電化住宅なので光熱費が経済的◎
バルコニーは南東向きなので陽当り良好です!
ゆったりと使える4LDK・各洋室と和室には収納スペースが確保されています。
車は3台駐車可能です◎
・洲本第三小学校まで徒歩約11分
・スーパーマルナカまで徒歩約11分
ご内覧予約随時受付中!お気軽にお問い合わせください◎
【住宅ローン1DAY診断を導入しました!診断のみでも大歓迎です!】
最短当日借入可能額を無料診断いたします。
是非お気軽にご相談ください! -
NEW
1,000万円
5階 / 59.29㎡ / 3LDK /築37年 /7階建
- バス・トイレ別
山陽本線「土山」駅 徒歩3分!
3LDKのお部屋◎
バス・トイレ別、収納あり!
お気軽にお問合せください!
【住宅ローン1DAY診断を導入しました!診断のみでも大歓迎です!】
最短当日借入可能額を無料診断いたします。
是非お気軽にご相談ください!
※家具・家電・什器は付帯しません。
※図面と現況が相違する場合は現況を優先いたします。 -
NEW
2,090万円
8階 / 66.00㎡ / 3LDK /築44年 /9階建
- 陽当り良好
- エレベーター
- リノベーション済
- リフォーム済
- ウォークインクロゼット
- バルコニー
~リノベーション物件 令和7年10月完了予定~
・新規交換:システムキッチン、ユニットバス、洗面化粧台、トイレ、建具、配管更新
・新規貼替:クロス全室、床材
・その他:ハウスクリーニング
お気軽にお問合せください!
【住宅ローン1DAY診断を導入しました!診断のみでも大歓迎です!】
最短当日借入可能額を無料診断いたします。
是非お気軽にご相談ください!
※家具・家電・什器は付帯しません。
※図面と現況が相違する場合は現況を優先いたします。 -
NEW
3,090万円
7階 / 73.80㎡ / 3LDK /築36年 /13階建
- 陽当り良好
- エレベーター
- リノベーション済
- リフォーム済
- バルコニー
- フローリング
JR西明石駅 徒歩約6分
南西向き、陽当り良好
リノベーション物件
お気軽にお問合せください!
【住宅ローン1DAY診断を導入しました!診断のみでも大歓迎です!】
最短当日借入可能額を無料診断いたします。
是非お気軽にご相談ください!
※家具・家電・什器は付帯しません。
※図面と現況が相違する場合は現況を優先いたします。 -
NEW
1,890万円
2階 / 66.00㎡ / 2LDK /築48年 /8階建
- エレベーター
- リノベーション済
- リフォーム済
- バルコニー
- フローリング
- システムキッチン
大蔵海岸公園まで徒歩約5分
2駅2沿線利用可能
総戸数111戸のビッグコミュニティ
お気軽にお問合せください!
【住宅ローン1DAY診断を導入しました!診断のみでも大歓迎です!】
最短当日借入可能額を無料診断いたします。
是非お気軽にご相談ください!
※家具・家電・什器は付帯しません。
※図面と現況が相違する場合は現況を優先いたします。 -
NEW
1,890万円
9階 / 73.71㎡ / 3LDK /築33年 /15階建
- 陽当り良好
- エレベーター
- リノベーション済
- リフォーム済
- ウォークインクロゼット
- バルコニー
南西向き、陽当り良好
総戸数172戸の大規模マンション
1住戸1台駐車場確保
お気軽にお問合せください!
【住宅ローン1DAY診断を導入しました!診断のみでも大歓迎です!】
最短当日借入可能額を無料診断いたします。
是非お気軽にご相談ください!
※家具・家電・什器は付帯しません。
※図面と現況が相違する場合は現況を優先いたします。 -
NEW
2,280万円
4階 / 75.04㎡ / 3LDK /築28年 /6階建
- 陽当り良好
- エレベーター
- バス・トイレ別
- 室内洗濯機置場
- フローリング
- 都市ガス
南西向きにつき陽当たり良好なお部屋です!
洗面室は廊下側・キッチン側の双方からアクセスでき、
回遊動線が確保された間取となっています◎
リビンは隣接する和室の襖を開けると、より解放感が出ます。
日々の生活にも便利な周辺環境です◎
JR西明石駅まで徒歩約14分
業務スーパー 西明石小久保店まで徒歩約9分
スーパーマルハチ 西明石店まで徒歩約7分
ご内覧予約随時受付中!是非お気軽にお問い合わせください◎
※駐輪場ステッカーあり:200円/台
●江井ヶ島駅まで徒歩約6分!
●セブンイレブンまで徒歩約5分
●JAファーマーズプチフレッシュモア江井ヶ島まで徒歩約5分
●南西向きの4階のお部屋で陽当たり良好◎
●全区画平置き駐車場^^
お気軽にお問い合わせください!
※組合賛助金(外部オーナーのみ):月額3,000円
~住宅ローン1DAY診断を導入しました!
診断のみでも大歓迎です!~
最短当日借入可能額を無料診断いたします。
是非お気軽にご相談ください!