ワコーレハート明舞

1,150万円

兵庫県明石市松が丘4丁目

山陽本線「朝霧」駅徒歩14分

価格
1,150万円
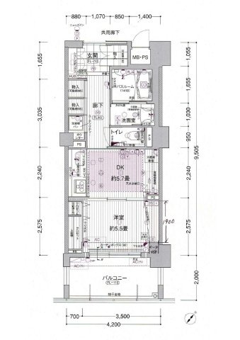
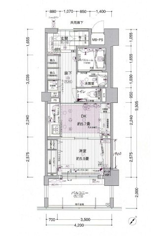
間取り/面積
1DK/38.34㎡
所在地
兵庫県明石市松が丘4丁目
築年
2011年3月(築14年)
駐車
-
交通

山陽本線朝霧」駅 徒歩14分

ワコーレハート明舞の基本情報

物件名
ワコーレハート明舞
価格
1,150万円
築年月
2011年3月(築14年)
総戸数
102戸
所在地
兵庫県明石市松が丘4丁目
交通

山陽本線朝霧」駅 徒歩14分

ワコーレハート明舞の詳細情報

設備条件
設備(その他)
    安心の24時間365日スタッフ常勤、入居者専用レストラン(週毎日替有)、サウナ付き大浴場、バリアフリー設計、医療/介護健康相談室、総合病院『明舞中央病院』隣接、DK部分床暖房、ペット飼育可(制限有)
駐車場/月額
-/-
土地権利
所有権
国土法届出
不要
用途地域
近隣商業
戸数
102戸 / 1戸
管理形態
自主管理
管理員の勤務形態
常駐
管理会社
-
取引態様
仲介
引渡し
相談

ワコーレハート明舞で募集中の物件

  1. 9階

    11.59坪 (38.34㎡)

    1,150万円(99.22万円/坪)

近隣の物件

  1. 明石市二見町東二見

    2LDK (70.59㎡)

    650万円

  2. 明石市東野町

    4LDK (79.62㎡)

    2,690万円

  3. 明石市二見町西二見

    3LDK (59.29㎡)

    1,000万円

  4. 明石市大久保町江井島

    2LDK (52.80㎡)

    1,448万円

ワコーレハート明舞

お気軽にお問い合わせください

無料お問い合わせ

(株)穴吹ハウジングサービス 西日本不動産事業部 関西営業所

0800-888-8668

9:00~18:00

(休:夏季休暇・年末年始・GW)